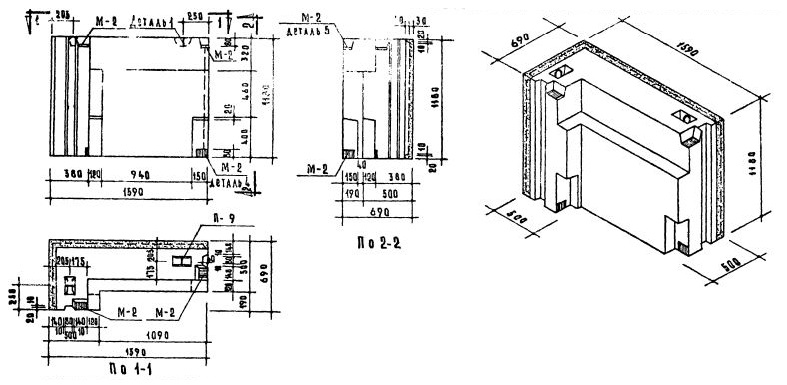
НБПУ-16.12.5

Чертеж изделия:
Чертеж НБПУ-16.12.5
Характеристики изделия:
ПараметрЗначение
Длина1590 мм
Ширина690 мм
Высота1180 мм
Масса1895 кг
Нормативный документСерия 1.133-1

Стеновые легкобетонные блоки толщиной 50 см по Серии 1.133-1.

НБПУ-16.12.5  Парапетный блок угловой.